
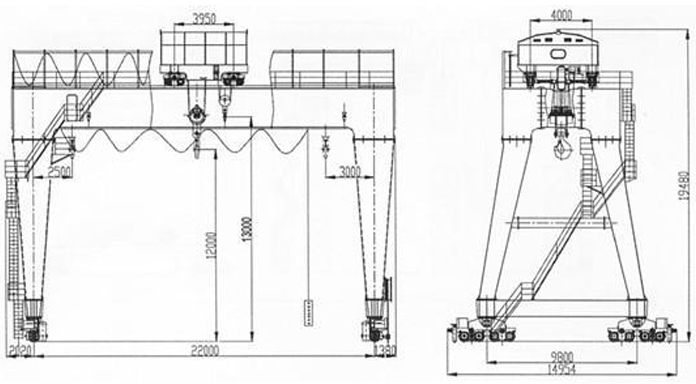
tunge løft crane, dobbel strålen gantry kran 30 tonn
Dobbel bredde portalkran med kroker brukes utenfor lageret eller jernbanen sidelengs for å gjøre vanlige løfte og lossing fungerer. Denne typen kran består av bridge, støtter bena, kran reiser orgel, tralle med sterk løfte vinsj, elektrisk utstyr og kontrollsystem. Som kraftig design, kan det bli mye brukt i alle typer industrielle feltet.




